門禁系統安裝與調試知識大全
一、門禁系統安裝與調試
保證功率足夠,盡量使用線性電源,門鎖和控制器應分開供電。電源的安裝盡可能靠近用電設備,以避免受到干擾和傳輸損耗。
分為電源線、通訊線、信號線,布線時注意強、弱電分開走線,兩管相隔要求大于20cm左右。消防工程改造
電源線:線徑足夠粗,采用多股導線。
信號線和通訊線:采用屏蔽五類雙絞線。其中485總線必須使用雙絞的一對線連接。在選購線材的時候建議采用4*0.5的四芯屏蔽線。
注意事項
-
(1)、屏蔽線千萬不能用來作為0V電壓(電源地)的連接線
-
(2)、每個屏蔽回路只能有一個接地端
-
(3)、當屏蔽回路中無法接地時可將屏蔽線連接到網絡的另一屏蔽回路中。
-
(4)、必須將各個模塊的的信號地連接在一起。
-
(5)、若線路中間有斷點,需將斷點用烙鐵焊上并做好絕緣處理。
-
(6)、不要將網絡連接線與交流電源放在一起。
-
(7)、如果網絡連線超過1000米,要加中繼器,中繼器后可以再延長1000米。
-
(1)讀卡器:不要安裝在金屬物體上,兩臺讀卡器之間的距離不要少于30厘米,最好通過控制器供電。如果讀卡器單獨從外部供電,讀卡器的電源請使用線性穩壓電源(變壓器),并且不能把直流的負極連接到交流的接地端。消防工程安裝
-
(2)網絡適配器:和控制器之間的連接采用手拉手的方式。
-
(3)控制器:不帶隔離的控制器,建議使用同一電源。
-
(4)鎖:在安裝磁力鎖時,一定要使鎖體和繼鐵板能緊密的結合,否則會出現吸力不夠的情況。電插鎖,在安裝電插鎖時如果需要開插孔,注意孔徑一定要夠大,深度一定要夠深,能讓鎖舌完全插入。鎖舌不能完全插入,鎖門后會出現鎖舌不停的跳動或工作電流一直很大,鎖體發燙的現象。消防檢測維修
二、門禁系統常見故障及維修方法
-
1.檢查電控鎖是否正常檢查電源或者更換電控鎖
-
2.鎖舌與鎖扣是否發生機械性卡死修復機械故障或者更換零部件
-
3.查看控制板上的指示燈,控制板與模塊間通訊是否正常排除故障
-
4.檢查讀卡器與模塊之間的通訊是否正常排除故障
-
5.是否設置了信息日關閉命令通過軟件調整開門時間
-
6.操作人員是否對門禁系統進行初始化或者其他命令通過軟件重新授權
-
1.檢查串口是否設置錯誤(確定所使用的串口)
-
2.檢查門禁通訊總線是否存在短路或斷路(排除通訊線短路與斷路現象)
-
3.檢查RS485通訊卡通訊芯片75184損壞(更換通訊芯片75148)
-
4.RS485通訊卡損壞(更換RS485通訊卡)
-
5.檢查網線水晶頭是否做好,檢查網線是否通,ping門禁控制器的地址。
清空門禁控制器,重新加載時間
1).操作人員將門禁器狀態設置為常開,或其它原因導致控制器處于常開狀態;
2).控制器故障;
處理方法:
將門鎖控制器狀態設為正常,若故障現象仍然存在,則更換控制器。
-
1.IC卡片在IC卡授權時已作讀卡有效時間段設置(可作全天讀卡有效設置)
-
2.門禁控制器異常發熱(更換門禁主板)
-
3.門禁讀寫天線(調整微調電容,增強讀卡距離)
-
1.使用了不符合要求的信號線或劣質的信號線;
-
2.信號線敷設不規范,如信號線跟電源線穿在同一條管內。
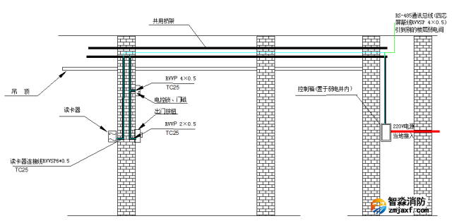
三、門禁安裝大樣圖、管線圖、系統圖、電鎖安裝圖


門禁安裝大樣圖




門禁設備安裝三視圖



四、九條門禁系統鎖故障總結
1、問:為什么磁力鎖關門時聲音極大?
答:
-
a.檢查是否有裝橡膠墊片.
-
b.檢查鐵板端,螺絲是否太松動.
-
c.檢查磁力鎖 鎖體 與 吸板 間距是否適當。

2、問:為什么磁力鎖使用一段時間后,鐵板吸不牢?
答:
-
a.檢查電源供器“功率和電壓”1A/12V/24V輸出是否減少。
-
b.檢查磁體表面是否有異物(如灰塵、銹積、異物等)。
3、問:為什么磁力鎖鐵板常常須調整?
答:
-
a.檢查鐵板是否裝銷釘.
-
b.檢查鐵板是否有裝橡皮墊.
-
c.建議客戶將螺絲上“螺絲固定劑.

4、問:什么鐵板吸住后,感覺有微微振動,且吸力不足?
答:
-
a.檢查磁力鎖主體面與鐵板是否完全吸合和無異物,或將鐵板調松 試一試.
-
b.檢查電壓,電流是否足夠。
5、問:為什么磁力鎖有調延時,但是沒效?
答:
-
a.磁力鎖“延時調整”是以通電后開始計時,而非關門后才開始計時。
-
b.磁力鎖的延時有0,3,6,9秒,看下設置是不是時間設置成了9秒了。
6、問:為什么磁力鎖有通電,但是紅色LED燈微亮且吸不住?
答:
檢查電壓 是否足以供應電磁鎖要求(應供1A電流/12V電壓)
7、問:為什么磁力鎖通電,吸住了但是紅色LED燈一直亮,而不亮綠燈?
答:
可能是磁力鎖的感應元件有破壞,需要更換。
8、問:為什么使用雙門磁力鎖,用了一段時間吸不住?
答:
雙門的磁力鎖耗電量比較大,檢查電源供應是否充足(是否足以雙門電磁力鎖的需求電流和電壓,或是否有線路損耗)。

9、問:磁力鎖為什么搭配控制器沒有動作?
答:檢查控制器“輸出”接點是否正確。
江蘇蘇州智淼消防安裝工程公司主營:北京消防施工安裝,消防工程設計,消防維修改造,消防設備檢測,消防驗收代辦,消防維修保養,探測器清洗,消防檢測設備,智慧消防物聯網,消防設備銷售安裝及調試為一體的正規化消防企業。消防改造網址:http://www.hb-xjkj.com/;服務熱線:4006-598-119








蘇公網安備32058102002151號